敷地面積およそ411坪!!
広い中庭もあるため、ドッグランなどの活用に最適です☆
保育園・小学校やスーパーマーケットも徒歩圏内にあり、住環境も良い立地となっております♪
| 土地面積 | 1361.98m²(411.99坪) | ||
|---|---|---|---|
| 建物面積 | 417.64m²(126.33坪) | ||
| 築年月 | 1992/4 | 新築/中古 | 中古 |
| バルコニー | 向き | ||
| 建物階数 | 地上1階 | 部屋階数 | |
| 建物構造 | 木造 | ||
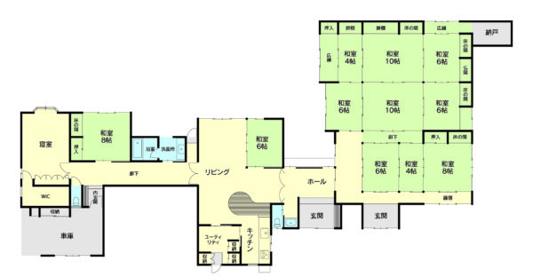
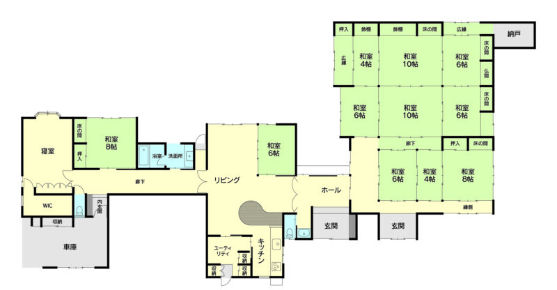
| 間取内容 | |||
| 駐車場 | 車庫:1台 青空:2台 | 取引態様 | 専属 |
| 引渡/入居時期 | 即時 | 現況 | 空家 |
| 地目 | 宅地 | 用途地域 | 第一種住居 |
| 都市計画 | 地勢 | 平坦 | |
| 建ぺい率 | 60% | 容積率 | 200% |
| 土地権利 | 所有権 | 接道状況 | 二方(除角地) |
| 接道方向1 | 北 | 間口 | |
| 接道種別1 | 公道 | 前面道路幅 | 9.2m |
| 接道方向2 | 東 | 間口2 | |
| 接道種別2 | 前面道路幅2 | 3.8m | |
| 周辺環境 | 田中小学校⋯約750m 滑川中学校⋯約1.6km | ||
| 設備・条件 | IHコンロ システムキッチン 独立洗面台 バス・トイレ別 温水洗浄便座 プロパンガス | ||
お電話でのお問い合わせ
受付時間/10:00〜18:00(水・第1,3,5日曜休)
富山県中小企業ビヨンドコロナ補助金活用事業(令和4年12月30日作成)