売地 【売地】南砺市高瀬203-1
new

この物件を問い合わせる

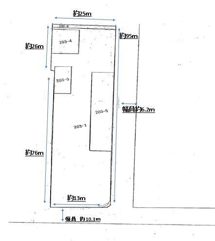
敷地面積およそ731坪!

広大な土地をお探しの方必見!

敷地内に事務所・倉庫2棟ございます☆

事業用地にいかがでしょうか。

  • 価格
    2,498万円
  • 種別
    売地
  • 坪単価
    3.4万円
  • 所在地
    富山県南砺市高瀬203-1  
  • 交通
    バス停「高瀬神社前」450m 徒歩約6分

物件詳細

土地面積 2419.19m²(731.80坪)
駐車場 取引態様 専属
引渡/入居時期 即時 現況 古屋あり
地目 宅地 用途地域 無指定
都市計画 非線引き区域 地勢 平坦
建ぺい率 60% 容積率 200%
土地権利 所有権 接道状況 二方(除角地)
接道方向1 間口 95.0m
接道種別1 公道 前面道路幅 6.2m
接道方向2 間口2 20.0m
接道種別2 公道 前面道路幅2 10.3m
周辺環境
設備・条件
Loading...
※物件掲載内容と現況に相違がある場合は現況を優先と致します。

TEL 0120-443-423
受付時間10:00~18:00 [ 水・第1,3日曜休 ]